We found 0 results. View results
Your search results

17336 Alana Drive, Moseley, VA 23120 (MLS # 2602575)

Posted by gwddev on | | 0
Save to Favorites
Print
Share

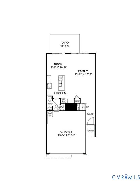
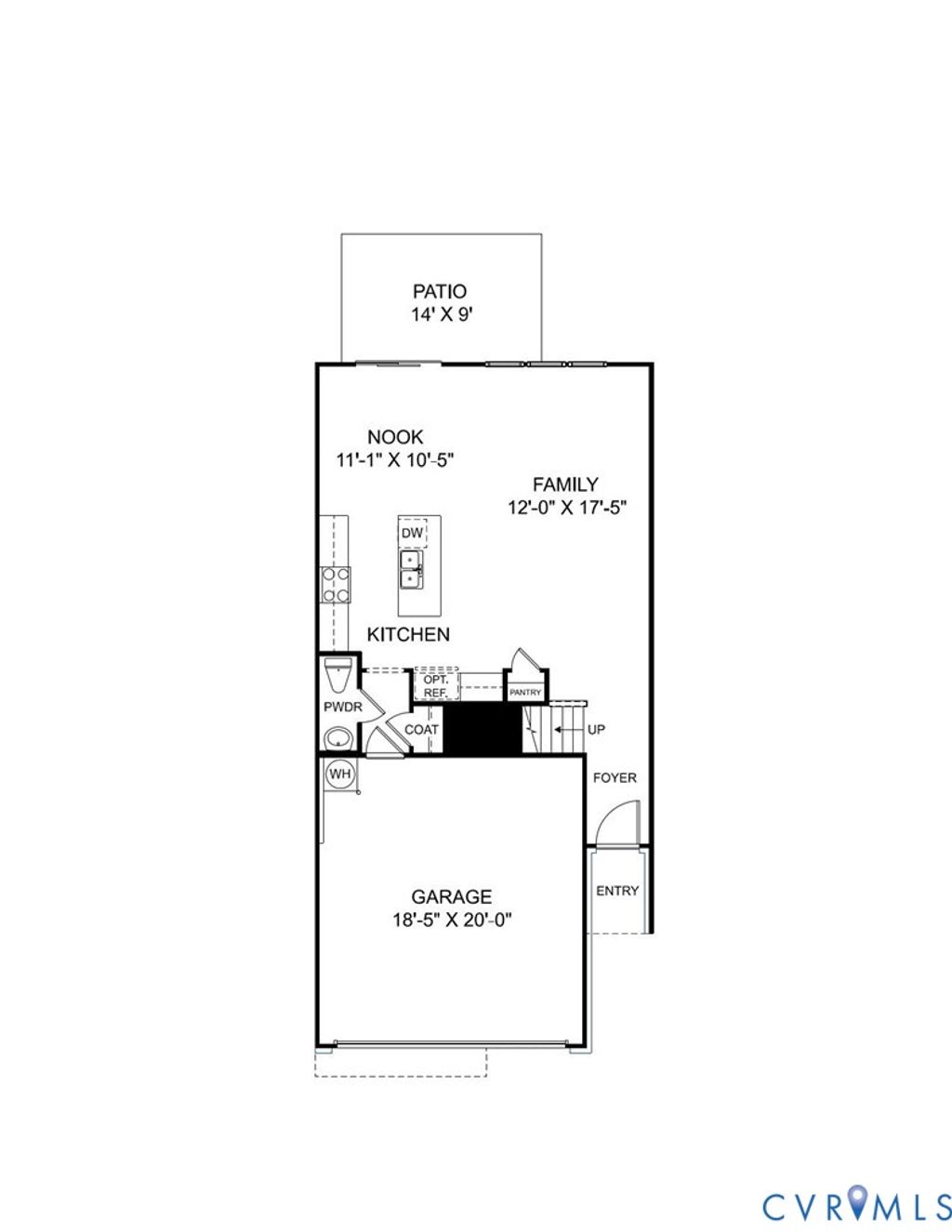
Ready Spring 2026! The Braxton designer home offers 2-car garage, 3 bedrooms, 2.5 bathrooms and patio space. ACT SOON - Purchaser has time to personalize their home by selecting their design finishes in our Design Gallery with our expert designers! The main living area of the Braxton offers a wonderful open concept layout. The kitchen features a large center island and dedicated pantry space for storage. Your Primary Suite is located on the second floor and offers a large walk-in closet and private bath with double vanity and double vanity. Two additional bedrooms, full bath with double vanity and centrally located laundry area completes the tour. Mount Hermon Townhomes, the newest addition to The Villages of Mount Hermon. These thoughtfully designed low-maintenance townhomes strike the perfect balance of style, function and location. Enjoy features like two-car garages, spacious layouts with versatile third-floor options and interiors tailored to fit your lifestyle. Immerse yourself in nature with access to walking trails and pop-up parks throughout the community. With easy access to both Hull Street Road and Midlothian Turnpike, you'll find countless shopping, dining and entertainment options. Nearby highways, include Powhite Parkway, I-64 and I-95. Townhome is under construction - Photos/tours are from builder's library and shown as examples only (colors, features and options will vary).

DAYS ON MARKET 1 LAST UPDATED 2/5/2026
TRACT Townes at Mount Hermon YEAR BUILT 2026
COMMUNITY 62 - Chesterfield GARAGE SPACES 2.0
COUNTY Chesterfield STATUS Active
PROPERTY TYPE(S) Condo/Townhouse/Co-Op

SCHOOLS
Elementary School Grange Hall
Jr. High School Deep Creek
High School Cosby


ADDITIONAL DETAILS
AIR Central Air
AIR CONDITIONING Yes
AMENITIES Maintenance Grounds, Maintenance Structure, Snow Removal, Trash
APPLIANCES Dishwasher, Electric Water Heater, Microwave, Oven, Water Heater
AREA 62 - Chesterfield
CONSTRUCTION Stone, Vinyl Siding, Wood Siding
GARAGE Yes
HEAT Electric, Forced Air
HOA DUES 150|Monthly
INTERIOR Double Vanity, High Ceilings, Kitchen Island, Pantry, Walk-In Closet(s)
PARKING Attached, Direct Access, Driveway, Garage, Garage Door Opener, Oversized, Paved
POOL DESCRIPTION None
SEWER Public Sewer
STORIES 2
STYLE Row House, Two Story
SUBDIVISION Townes at Mount Hermon
TAXES 3856
WATER Public
MORTGAGE CALCULATOR
   

TOTAL MONTHLY PAYMENT

0
P
I
*Estimate only

SATELLITE VIEW



 
CONTACT US ABOUT 17336 ALANA DRIVE
 / 
We respect your online privacy and will never spam you. By submitting this form with your telephone number you are consenting for Baker Ellett to contact you even if your name is on a Federal or State "Do not call List".

Listed with HHHunt Realty Inc

All or a portion of the multiple Listing information is provided by the Central Virginia Regional Multiple Listing Service, LLC, from a copyrighted compilation of Listings. All CVR MLS information provided is deemed reliable but is not guaranteed accurate. The compilation of Listings and each individual Listing are ©2026 Central Virginia Regional Multiple Listing Service, LLC. All rights reserved.

IDX information is provided exclusively for consumers’ personal, non-commercial use, that it may not be used for any purpose other than to identify prospective properties consumers may be interested in purchasing

Last Updated: 2/5/26 8:05 PM PST

This IDX solution is (c) Diverse Solutions 2026.

  • Mortgage Calculator

Compare Listings