We found 0 results. View results
Your search results

6 Tapoan Road, Richmond, VA 23226 (MLS # 2601285)

Posted by gwddev on | | 0
Save to Favorites
Print
Share

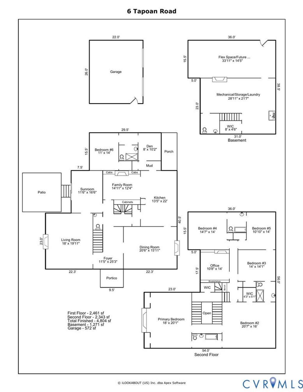
Welcome to "Bienvenue," a remarkable brick and slate residence originally built in 1803 in Hanover County and thoughtfully disassembled and rebuilt in 1937 in its coveted setting near the University of Richmond and the Country Club of Virginia. A Charles Gillette-designed portico entry opens to a gracious front hall highlighted by a soaring Queen's Rise turned staircase and 9½-foot ceilings on the first floor. Elegant living and dining rooms"”both with fireplaces"”offer generous scale, while oversized windows with original wavy glass bathe the interiors in natural light. Period millwork, wide heart pine floors, and timeless architectural details are found throughout. The large, open kitchen features original inset custom cabinetry and granite countertops and flows seamlessly into a handsome paneled den with built-ins and a fireplace. Oversized "Jefferson" windows lead to a charming sunroom with painted exposed brick and steps down to a brick patio overlooking a spacious, beautifully landscaped garden. The brick privacy wall and fountain are beautiful accents to the lovely grounds. The first-floor guest suite provides a comfortable bedroom, a sitting room and full bath- Ideal for an in-law or au pair suite. A covered side entry from the cobblestone edged driveway opens to a practical mudroom. Upstairs, five spacious bedrooms"”including one with a fireplace"”are complemented by three full baths and a wonderful study with built-ins and a fifth fireplace. The waterproofed basement level offers excellent future recreation space with the home's sixth fireplace, along with abundant storage and mechanical areas. The large attic offers great additional storage. Notable improvements include new copper gutters, a whole-house gas generator, newly repaired and replaced roof, and a proper detached two-car garage, completing this extraordinary and historically significant home. Enjoy this picture perfect location walking to Libbie & Grove and the golf course greens at the end of the street!

DAYS ON MARKET 2 LAST UPDATED 2/4/2026
TRACT None YEAR BUILT 1803
COMMUNITY 20 - Richmond GARAGE SPACES 2.0
COUNTY Richmond City STATUS Active
PROPERTY TYPE(S) Single Family

SCHOOLS
Elementary School Munford
Jr. High School Albert Hill
High School Thomas Jefferson


ADDITIONAL DETAILS
AIR Central Air, Electric, Heat Pump
AIR CONDITIONING Yes
APPLIANCES Dishwasher, Disposal, Electric Cooktop, Electric Water Heater, Ice Maker, Microwave, Oven, Range, Refrigerator, Washer
AREA 20 - Richmond
BASEMENT Full, Interior Entry, Walk-Out Access, Yes
CONSTRUCTION Brick, Plaster
FIREPLACE Yes
GARAGE Yes
HEAT Electric, Heat Pump, Natural Gas, Radiant, Zoned
INTERIOR Bookcases, Built-in Features, Granite Counters, High Ceilings, Master Downstairs, Pantry, Recessed Lighting
LOT 0.68 acre(s)
LOT DESCRIPTION Corner Lot, Landscaped, Level
PARKING Driveway, Detached, Garage, Off Street, Paved
POOL DESCRIPTION None
SEWER Public Sewer
STORIES 2
STYLE Colonial
SUBDIVISION None
TAXES 22104
WATER Public
ZONING R-1
MORTGAGE CALCULATOR
   

TOTAL MONTHLY PAYMENT

0
P
I
*Estimate only

SATELLITE VIEW



 
CONTACT US ABOUT 6 TAPOAN ROAD
 / 
We respect your online privacy and will never spam you. By submitting this form with your telephone number you are consenting for Baker Ellett to contact you even if your name is on a Federal or State "Do not call List".

Listed with Long & Foster REALTORS

All or a portion of the multiple Listing information is provided by the Central Virginia Regional Multiple Listing Service, LLC, from a copyrighted compilation of Listings. All CVR MLS information provided is deemed reliable but is not guaranteed accurate. The compilation of Listings and each individual Listing are ©2026 Central Virginia Regional Multiple Listing Service, LLC. All rights reserved.

IDX information is provided exclusively for consumers’ personal, non-commercial use, that it may not be used for any purpose other than to identify prospective properties consumers may be interested in purchasing

Last Updated: 2/5/26 6:25 PM PST

This IDX solution is (c) Diverse Solutions 2026.

  • Mortgage Calculator

Compare Listings