We found 0 results. View results
Your search results

TBD Old Pump Road, Henrico, VA 23233 (MLS # 2533225)

Posted by gwddev on | | 0
Save to Favorites
Print
Share

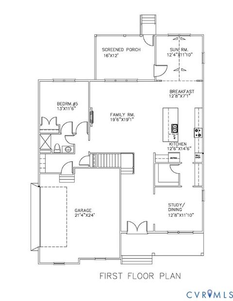
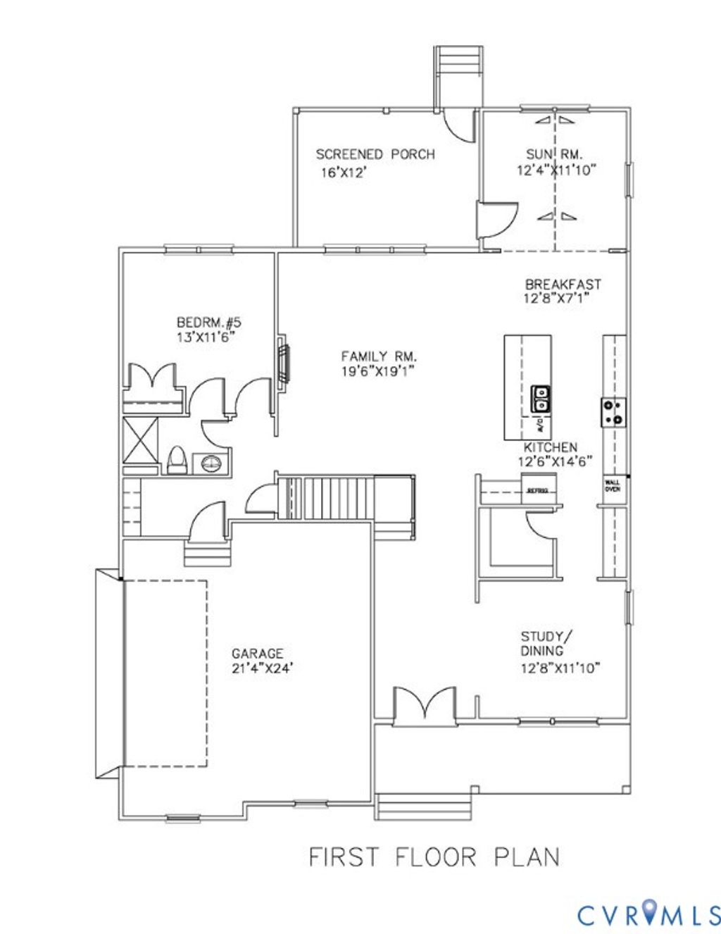
NEW CONSTRUCTION! The Preserve at John Rolfe offers an exclusive collection of just 10 luxury homes in the heart of Short Pump. Thoughtfully designed and expertly crafted by Bradford Custom Homes"”a family-owned local builder. Homesites offer private rear yards with natural buffers. Residents can enjoy the common space and private walking path through the nature preserve and park-like setting. Enter through stunning double Mahogany doors to 4,127 sq.ft. of luxury living. Modern interior design 60" linear fireplace, LVP in main throughout first floor living with oak hardwood staircase. Designer Kitchen w large island for entertaining, quartz countertops, wall oven & gas range w stainless hood. Enjoy built-in Coffee/Tea bar, large walk-in pantry. GUEST SUITE ON MAIN LEVEL with full bath PLUS 1st flr study. Beautiful double door entry elevates the spacious primary retreat - spa bath w modern freestanding tub & full tile shower. Second floor offers all en-suite bedrooms! 3rd flr offers private guest suite w full bath & large media room. Bradford Custom Homes builds w Energy Efficient Systems: Rinnai Tankless water heater, Low-E windows, Trane 14 seer units. Privacy Fence at rear property line. Full Sod & Irrigation!

DAYS ON MARKET 2 LAST UPDATED 12/15/2025
TRACT None YEAR BUILT 2025
COMMUNITY 34 - Henrico GARAGE SPACES 2.0
COUNTY Henrico STATUS Active
PROPERTY TYPE(S) Single Family

SCHOOLS
Elementary School Short Pump
Jr. High School Pocahontas
High School Godwin


ADDITIONAL DETAILS
AIR Central Air, Zoned
AIR CONDITIONING Yes
APPLIANCES Cooktop, Dishwasher, Disposal, Gas Water Heater, Microwave, Oven, Range Hood, Tankless Water Heater
AREA 34 - Henrico
BASEMENT Crawl Space
CONSTRUCTION Brick, Frame, HardiPlank Type, Stone
EXTERIOR Lighting
FIREPLACE Yes
GARAGE Yes
HEAT Electric, Natural Gas, Zoned
HOA DUES 900|Annually
INTERIOR High Ceilings, Kitchen Island, Master Downstairs, Walk-In Closet(s)
LOT DESCRIPTION Cul-De-Sac
PARKING Attached, Driveway, Garage, Garage Door Opener, Paved
POOL DESCRIPTION None
SEWER Public Sewer
STORIES 3+
STYLE Custom, Two Story
SUBDIVISION None
WATER Public
MORTGAGE CALCULATOR
   

TOTAL MONTHLY PAYMENT

0
P
I
*Estimate only

SATELLITE VIEW



 
CONTACT US ABOUT TBD OLD PUMP ROAD
 / 
We respect your online privacy and will never spam you. By submitting this form with your telephone number you are consenting for Baker Ellett to contact you even if your name is on a Federal or State "Do not call List".

Listed with Richmond Real Estate Assoc Ltd

All or a portion of the multiple Listing information is provided by the Central Virginia Regional Multiple Listing Service, LLC, from a copyrighted compilation of Listings. All CVR MLS information provided is deemed reliable but is not guaranteed accurate. The compilation of Listings and each individual Listing are ©2025 Central Virginia Regional Multiple Listing Service, LLC. All rights reserved.

IDX information is provided exclusively for consumers’ personal, non-commercial use, that it may not be used for any purpose other than to identify prospective properties consumers may be interested in purchasing

Last Updated: 12/17/25 6:17 AM PST

This IDX solution is (c) Diverse Solutions 2025.

  • Mortgage Calculator

Compare Listings