| 
 | 
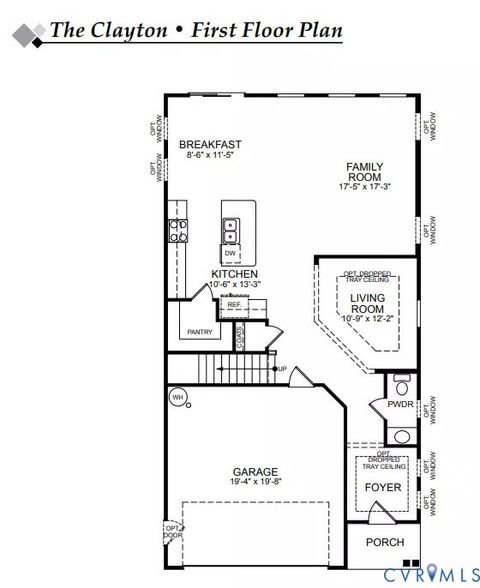
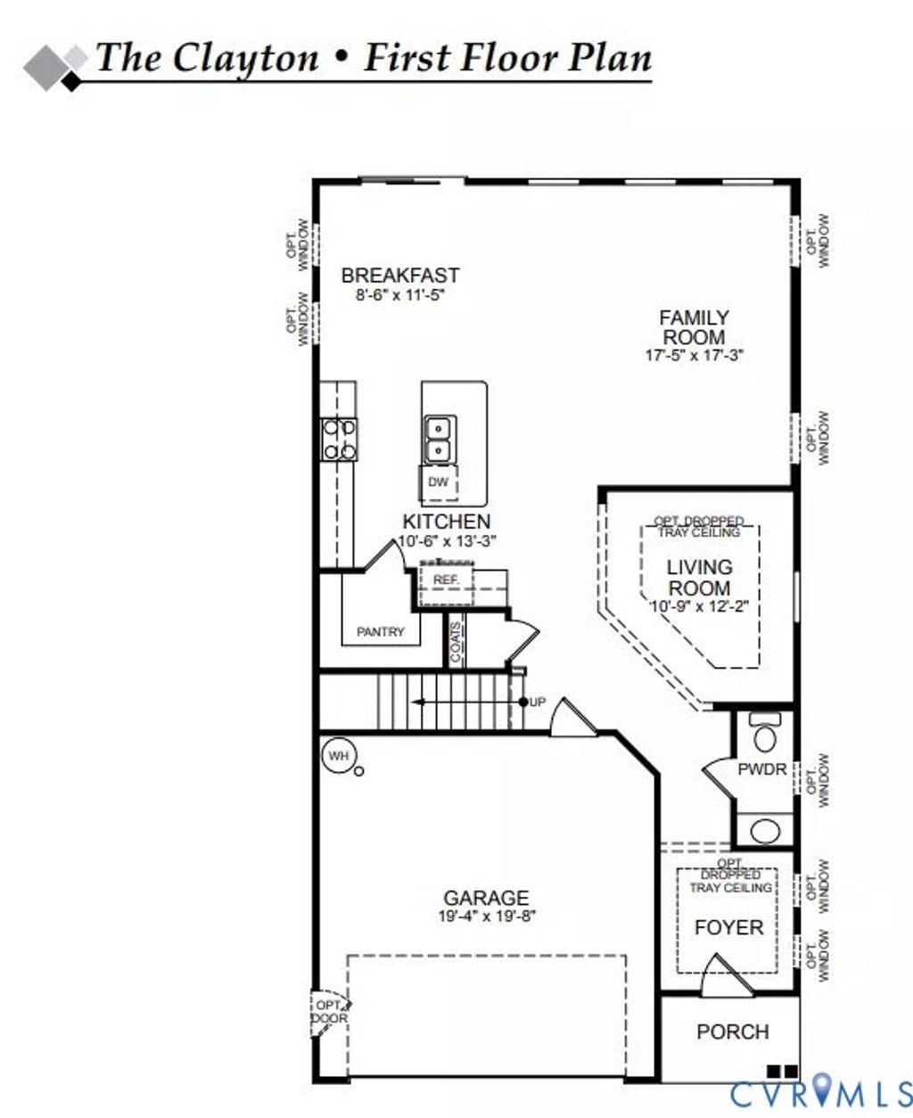
This home is UNDER CONSTRUCTION. Watermark, an upscale community nestled around beautiful Watermark Lake in award-winning Chesterfield County. The Clayton is a two-story home with 3 bedrooms and 2.5 baths. Stepping inside, the main living areas on the first floor showcase the stunning EVP flooring. The kitchen features a granite countertop, island, gas range, wall oven, kitchen cabinet design using the Benton style in birch wood, painted in Frost (white) and Foxhall Green, roll-out trays, a cast iron white sink, a stainless dishwasher, a walk-in pantry, and a separate breakfast area. Bright and spacious family room open to the kitchen. A formal living room with EVP flooring. A powder room for guests completes the first floor. Upstairs you'll find all three bedrooms, including the primary bedroom with a spacious walk-in closet and an ensuite bath with a soaking tub, a walk-in shower with a seat, a double vanity, a water closet, and a linen closet. Bedroom 2 has a double-door closet, while Bedroom 3 has a closet, and both are carpeted. The loft area, laundry room, and a hall bath complete the second floor. Planned amenities in the community consist of a 200,000-square-foot town center with shops and restaurants, a luxury clubhouse with a state-of-the-art fitness center, an Olympic-sized swimming pool, tennis courts, and recreation"‹"‹"Œ"‹"‹"‹"‹"Œ"‹"Œ"‹"‹"‹"‹"Œ"‹"‹"Œ"‹"‹"‹"‹"Œ"Œ fields.
| DAYS ON MARKET | 1 | LAST UPDATED | 10/30/2025 | 
|---|---|---|---|
| TRACT | Watermark | YEAR BUILT | 2025 | 
| COMMUNITY | 54 - Chesterfield | GARAGE SPACES | 2.0 | 
| COUNTY | Chesterfield | STATUS | Active | 
| PROPERTY TYPE(S) | Single Family | 
| Elementary School | Hopkins | 
|---|---|
| Jr. High School | Falling Creek | 
| High School | Bird | 
| ADDITIONAL DETAILS | |
| AIR | Central Air | 
|---|---|
| AIR CONDITIONING | Yes | 
| APPLIANCES | Cooktop, Dishwasher, Disposal, Exhaust Fan, Microwave, Tankless Water Heater | 
| AREA | 54 - Chesterfield | 
| CONSTRUCTION | Block, Frame, Vinyl Siding | 
| GARAGE | Yes | 
| HEAT | Electric, Exhaust Fan, Forced Air, Heat Pump | 
| HOA DUES | 150|Quarterly | 
| INTERIOR | Double Vanity, Eat-in Kitchen, Granite Counters, High Ceilings, Kitchen Island, Pantry, Walk-In Closet(s) | 
| LOT | 3598 sq ft | 
| PARKING | Attached, Direct Access, Driveway, Garage, Garage Door Opener, Paved | 
| POOL | Yes | 
| POOL DESCRIPTION | Outdoor Pool, Community | 
| SEWER | Public Sewer | 
| STORIES | 2 | 
| STYLE | Two Story | 
| SUBDIVISION | Watermark | 
| TAXES | 534 | 
| WATER | Public | 
| ZONING | C3 | 
            MORTGAGE CALCULATOR
        
        TOTAL MONTHLY PAYMENT
0
                    P
                        I 
                    
            *Estimate only
        
    | SATELLITE VIEW | 
| / | |
	We respect your online privacy and will never spam you. By submitting this form with your telephone number
	you are consenting for Baker
	Ellett to contact you even if your name is on a Federal or State
	"Do not call List".
	
    Listed with Keller Williams Realty
	All or a portion of the multiple Listing information is provided by the Central Virginia Regional Multiple Listing Service, LLC, from a copyrighted compilation of Listings. All CVR MLS information provided is deemed reliable but is not guaranteed accurate. The compilation of Listings and each individual Listing are ©2025 Central Virginia Regional Multiple Listing Service, LLC. All rights reserved.
IDX information is provided exclusively for consumers’ personal, non-commercial use, that it may not be used for any purpose other than to identify prospective properties consumers may be interested in purchasing
Last Updated: 10/31/25 9:07 AM PDT
This IDX solution is (c) Diverse Solutions 2025.
 
         Twitter
									        Twitter Facebook
									        Facebook Email
									        Email 
									 
									 
									 
									 
									 
									 
									 
									 
									 
									 
									 
									 
									 
									 
									 
									 
									 
									