We found 0 results. View results
Your search results

TBD Buckners Lot 24 Lane, Mineral, VA 23117 (MLS # 2530136)

Posted by gwddev on | | 0
Save to Favorites
Print
Share

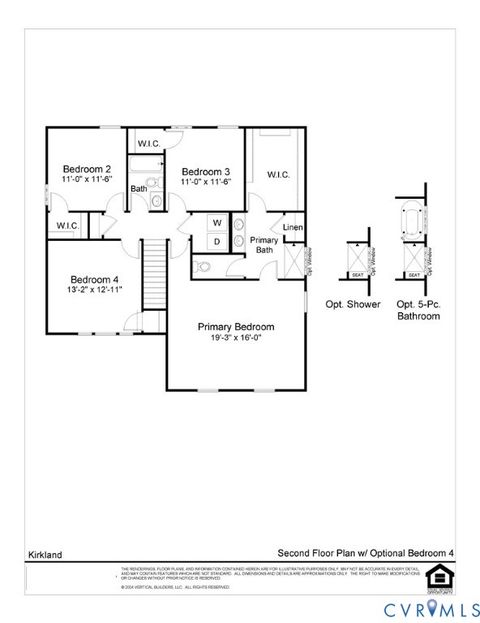
TO BE BUILT! Ask about structural options and homesites. The Kirkland plan, offering 2,016+ square feet of thoughtfully planned living space. The plan offers 3 to 4 bedrooms and 2.5 bathrooms, 2-car garage. You will enter through an intimate front porch, once inside, the spacious foyer will lead to a private office space. Continuing down the hallway, you'll enter the family room, an expansive and versatile space perfect for gatherings or quiet evenings. It also has a powder room centrally located. The family room flows seamlessly into the dinette and kitchen area, creating a central hub. The kitchen includes a walk-in pantry and a breakfast bar that doubles as a dining and buffet space. Near the dinette, a 2 car front-load garage. Up the stairs, a loft area that connects to the sleeping quarters, two secondary bedrooms and a full bathroom conveniently located between them. And a laundry room. The spacious primary suite and ensuite include a private water closet, an extended vanity, a walk-in shower, a linen closet and a walk-in closet thoughtfully designed to accommodate your storage needs. The home is being built in Compass Cove, where luxury living meets water access to the beauty of Lake Anna. Whether this is your forever home or an investment opportunity, Compass Cove is an exciting new neighborhood for both. Pictures used for advertising purposes, are not of the house, may include upgrades, not part of the advertised price.

DAYS ON MARKET 2 LAST UPDATED 11/3/2025
TRACT None YEAR BUILT 2025
COMMUNITY 38 - Louisa GARAGE SPACES 2.0
COUNTY Louisa STATUS Active
PROPERTY TYPE(S) Single Family

SCHOOLS
Elementary School Thomas Jefferson
Jr. High School Louisa
High School Louisa


ADDITIONAL DETAILS
AIR Ceiling Fan(s), Central Air, Heat Pump
AIR CONDITIONING Yes
APPLIANCES Cooktop, Dishwasher, Electric Water Heater, Microwave, Range, Water Heater
AREA 38 - Louisa
BASEMENT Crawl Space
CONSTRUCTION Brick, Frame, HardiPlank Type
GARAGE Yes
HEAT Electric, Heat Pump
HOA DUES 1000|Annually
INTERIOR Ceiling Fan(s), Eat-in Kitchen, Granite Counters, High Speed Internet, Pantry, Walk-In Closet(s), Wired for Data
LOT 1.54 acre(s)
PARKING Attached, Driveway, Garage, Garage Door Opener, Oversized, Paved
POOL DESCRIPTION None
SEWER Septic Tank
STORIES 2
STYLE Two Story
SUBDIVISION None
TAXES 644
VIEW Yes
VIEW DESCRIPTION Water
WATER Well
WATERFRONT DESCRIPTION Waterfront Access
ZONING R-2
MORTGAGE CALCULATOR
   

TOTAL MONTHLY PAYMENT

0
P
I
*Estimate only

SATELLITE VIEW



 
CONTACT US ABOUT TBD BUCKNERS LOT 24 LANE
 / 
We respect your online privacy and will never spam you. By submitting this form with your telephone number you are consenting for Baker Ellett to contact you even if your name is on a Federal or State "Do not call List".

Listed with Hometown Realty

All or a portion of the multiple Listing information is provided by the Central Virginia Regional Multiple Listing Service, LLC, from a copyrighted compilation of Listings. All CVR MLS information provided is deemed reliable but is not guaranteed accurate. The compilation of Listings and each individual Listing are ©2025 Central Virginia Regional Multiple Listing Service, LLC. All rights reserved.

IDX information is provided exclusively for consumers’ personal, non-commercial use, that it may not be used for any purpose other than to identify prospective properties consumers may be interested in purchasing

Last Updated: 11/4/25 3:26 PM PST

This IDX solution is (c) Diverse Solutions 2025.

  • Mortgage Calculator

Compare Listings