We found 0 results. View results
Your search results

TBD Buckners Lot 7 Lane, Mineral, VA 23117 (MLS # 2529509)

Posted by gwddev on | | 0
Save to Favorites
Print
Share

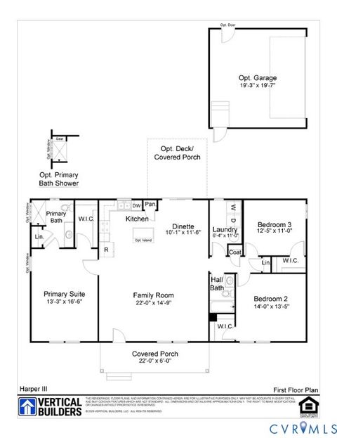
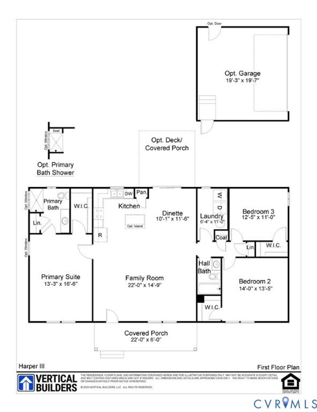
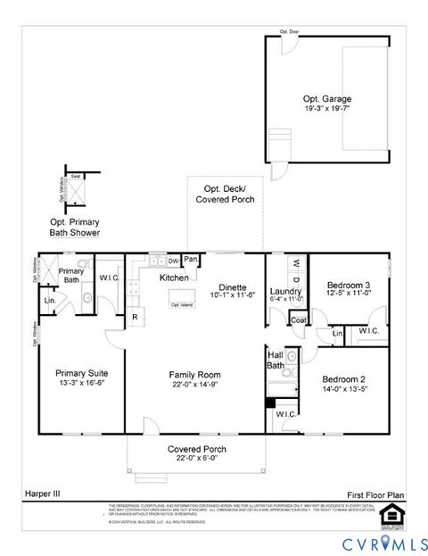
THIS IS A TO BE BUILT HOME! Still time for you to choose your design. The Harper III is a home that blends a rustic twist with a modern platform, offering 1,624 sqft of versatile living space. The Harper III, greets you with an attractive front porch, perfect for sipping your morning coffee, welcoming guests, or watching the kids play. Stepping inside, you'll find a spacious living room ready to adapt to your family's lifestyle. From the living room, the home transitions seamlessly into the kitchen and dining area, where functionality meets style. The kitchen boasts fashionable finishes and a pantry for added storage. Adjacent to the kitchen is the dining area, with access to the covered deck for a seamless indoor-outdoor living experience. Continuing through the central hallway, located between the living and dining areas, you'll find a walk-in laundry room and full bathroom. Down the hall, you'll find two secondary bedrooms, each featuring its own walk-in closet. Across the home lies the primary suite, a spacious retreat designed to offer peace and relaxation. This serene space includes a primary bathroom featuring a chic walk-in shower, and a walk-in closet, providing ample space. be customized to lifestyle and personal aesthetics. This home is located in Compass Cove located on the private side of Lake Anna and offers a boat dock, picnic area with gazebo. A boat slip is available for purchase as well. Photos used for advertising purposes and not of the actual house and may include upgrades not part of the advertised price. Come visit our model home in the community.

DAYS ON MARKET 2 LAST UPDATED 11/3/2025
TRACT None YEAR BUILT 2025
COMMUNITY 38 - Louisa COUNTY Louisa
STATUS Active PROPERTY TYPE(S) Single Family

SCHOOLS
Elementary School Thomas Jefferson
Jr. High School Louisa
High School Louisa


ADDITIONAL DETAILS
AIR Ceiling Fan(s), Central Air, Electric
AIR CONDITIONING Yes
APPLIANCES Cooktop, Dishwasher, Electric Cooktop, Electric Water Heater, Microwave, Range, Water Heater
AREA 38 - Louisa
BASEMENT Crawl Space
CONSTRUCTION Brick, Frame, HardiPlank Type
HEAT Electric, Heat Pump
HOA DUES 1000|Annually
INTERIOR Ceiling Fan(s), Eat-in Kitchen, Granite Counters, Master Downstairs, Pantry, Walk-In Closet(s)
LOT 1.56 acre(s)
PARKING Driveway, Paved
POOL DESCRIPTION None
SEWER Septic Tank
STORIES 1
STYLE Ranch
SUBDIVISION None
TAXES 645
WATER Well
WATERFRONT DESCRIPTION Waterfront Access
ZONING R-2
MORTGAGE CALCULATOR
   

TOTAL MONTHLY PAYMENT

0
P
I
*Estimate only

SATELLITE VIEW



 
CONTACT US ABOUT TBD BUCKNERS LOT 7 LANE
 / 
We respect your online privacy and will never spam you. By submitting this form with your telephone number you are consenting for Baker Ellett to contact you even if your name is on a Federal or State "Do not call List".

Listed with Hometown Realty

All or a portion of the multiple Listing information is provided by the Central Virginia Regional Multiple Listing Service, LLC, from a copyrighted compilation of Listings. All CVR MLS information provided is deemed reliable but is not guaranteed accurate. The compilation of Listings and each individual Listing are ©2025 Central Virginia Regional Multiple Listing Service, LLC. All rights reserved.

IDX information is provided exclusively for consumers’ personal, non-commercial use, that it may not be used for any purpose other than to identify prospective properties consumers may be interested in purchasing

Last Updated: 11/4/25 4:12 PM PST

This IDX solution is (c) Diverse Solutions 2025.

  • Mortgage Calculator

Compare Listings