We found 0 results. View results
Your search results

TBD Buckners Lot 16 Lane, Louisa, VA 23117 (MLS # 2524123)

Posted by gwddev on | | 0
Save to Favorites
Print
Share

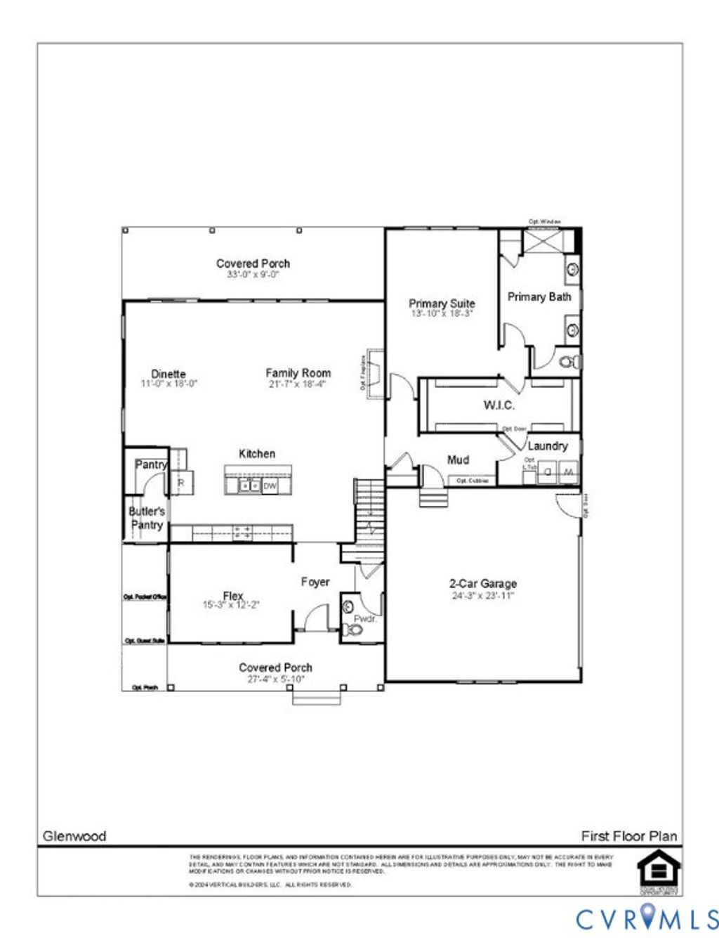
THIS IS A TO BE BUILT HOME! The Glenwood by Vertical Builders offers over 3,545 sqft of elegant and functional living. A welcoming covered porch sets the tone before stepping inside to a flexible main-level layout. The open kitchen features a large island, butler's pantry, and walk-in pantry, flowing seamlessly into the dining area and spacious living room with an optional fireplace. The first-floor primary suite is a private retreat with a spa-like bath, massive walk-in closet, and direct laundry access. A flex room offers versatility as a dining room, office, or optional guest suite. Upstairs, a loft anchors three generously sized bedrooms, each with walk-in-closets, and a thoughtfully designed hall bath. With its blend of comfort, style, and practicality, The Glenwood is ideal for both everyday living and entertaining. This home can be built in Compass Cove, a charming new water-access community on the private side of Lake Anna where select homesites include a deeded boat slip, making it easy to enjoy boating, fishing, and the best of waterfront living. With convenient access to local dining, shops, and nearby parks, this community offers a vibrant and fulfilling lifestyle. Photos used represent the Glenwood plan and may include upgraded options that are not included in the advertised price.

DAYS ON MARKET 2 LAST UPDATED 11/3/2025
TRACT None YEAR BUILT 2025
COMMUNITY 38 - Louisa GARAGE SPACES 2.0
COUNTY Louisa STATUS Active
PROPERTY TYPE(S) Single Family

SCHOOLS
Elementary School Thomas Jefferson
Jr. High School Louisa
High School Louisa


ADDITIONAL DETAILS
AIR Ceiling Fan(s), Electric, Zoned
AIR CONDITIONING Yes
APPLIANCES Dishwasher, Electric Water Heater, Microwave, Range
AREA 38 - Louisa
BASEMENT Crawl Space
CONSTRUCTION Brick, Frame, HardiPlank Type
GARAGE Yes
HEAT Electric, Heat Pump, Zoned
HOA DUES 1000|Annually
INTERIOR Ceiling Fan(s), Double Vanity, Granite Counters, High Ceilings, Kitchen Island, Master Downstairs, Pantry, Walk-In Closet(s)
LOT 1.273 acre(s)
PARKING Attached, Driveway, Garage, Garage Door Opener, Paved
POOL DESCRIPTION None
SEWER Septic Tank
STORIES 2
STYLE Two Story
SUBDIVISION None
TAXES 642
WATER Well
ZONING R-2
MORTGAGE CALCULATOR
   

TOTAL MONTHLY PAYMENT

0
P
I
*Estimate only

SATELLITE VIEW



 
CONTACT US ABOUT TBD BUCKNERS LOT 16 LANE
 / 
We respect your online privacy and will never spam you. By submitting this form with your telephone number you are consenting for Baker Ellett to contact you even if your name is on a Federal or State "Do not call List".

Listed with Hometown Realty

All or a portion of the multiple Listing information is provided by the Central Virginia Regional Multiple Listing Service, LLC, from a copyrighted compilation of Listings. All CVR MLS information provided is deemed reliable but is not guaranteed accurate. The compilation of Listings and each individual Listing are ©2025 Central Virginia Regional Multiple Listing Service, LLC. All rights reserved.

IDX information is provided exclusively for consumers’ personal, non-commercial use, that it may not be used for any purpose other than to identify prospective properties consumers may be interested in purchasing

Last Updated: 11/4/25 4:31 PM PST

This IDX solution is (c) Diverse Solutions 2025.

  • Mortgage Calculator

Compare Listings